船用外螺纹空气信号安全阀CB/3022-94
安全阀属于自动阀类,主要用于锅炉、压力容器和管道上,控制压力不超过规定值,对人身安全和设备运行起重要保护作用。注安全阀必须经过压力试验才能使用。
安全阀结构分类
按其整体结构及加载机构的不同可以分为重锤杠杆式、弹簧式和脉冲式三种。
1.重锤杠杆式安全阀 重锤杠杆式安全阀是利用重锤和杠杆来平衡作用在阀瓣上的力。根据杠杆原理,它可以使用质量较小的重锤通过杠杆的增大作用获得较大的作用力,并通过移动重锤的位置(或变换重锤的质量)来调整安全阀的开启压力。 重锤杠杆式安全阀结构简单,调整容易而又比较准确,所加的载荷不会因阀瓣的升高而有较大的增加,适用于温度较高的场合,过去用得比较普遍,特别是用在锅炉和温度较高的压力容器上。但重锤杠杆式安全阀结构比较笨重,加载机构容易振动,并常因振动而产生泄漏;其回座压力较低,开启后不易关闭及保持严密。
2.弹簧微启式安全阀 弹簧微启式安全阀是利用压缩弹簧的力来平衡作用在阀瓣上的力。螺旋圈形弹簧的压缩量可以通过转动它 上面的调整螺母来调节,利用这种结构就可以根据需要校正安全阀的开启(整定)压力。弹簧微启式安全阀结构轻便紧凑,灵敏度也比较高,安装位置不受限制,而且因为对振动的敏感性小,所以可用于移动式的压力容器上。这种安全阀的缺点是所加的载荷会随着阀的开启而发生变化,即随着阀瓣的升高,弹簧的压缩量增大,作用在阀瓣上的力也跟着增加。这对安全阀的迅速开启是不利的。另外,阀上的弹簧会由于长期受高温的影响而使弹力减小。用于温度较高的容器上时,常常要考虑弹簧的隔热或散热问题,从而使结构变得复杂起来。
3.脉冲式安全阀 脉冲式安全阀由主阀和辅阀构成,通过辅阀的脉冲作用带动主阀动作、其结构复杂,通常只适用于安全泄放量很大的锅炉和压力容器。 上述三种形式的安全阀中,用得比较普遍的是弹簧式安全阀。
安全阀常见故障
排放后阀瓣不回座:这主要是弹簧弯曲阀杆、阀瓣安装位置不正或被卡住造成的。应重新装配。
泄漏:在设备正常工作压力下,阀瓣与阀座密封面之间发生超过允许程度的渗漏。其原因有:阀瓣与阀座密封面之间有脏物。可使用提升扳手将阀开启几次,把脏物冲去;密封面损伤。应根据损伤程度,采用研磨或车削后研磨的方法加以修复;阀杆弯曲、倾斜或杠杆与支点偏斜,使阀芯与阀瓣错位。应重新装配或更换;弹簧弹性降低或失去弹性。应采取更换弹簧、重新调整开启压力等措施。
[span]到规定压力时不开启:造成这种情况的原因是定压不准。应重新调整弹簧的压缩量或重锤的位置;阀瓣与阀座粘住。应定期对安全阀作手动放气或放水试验;杠杆式安全阀的杠杆被卡住或重锤被移动。应重新调整重锤位置并使杠杆运动自如。
[span] 排气后压力继续上升:这主要是因为选用的安全阀排量小于设备的安全泄放量,应重新选用合适的安全阀;阀杆中线不正或弹簧生锈,使阀瓣不能开到应有的高度,应重新装配阀杆或更换弹簧;排气管截有不够,应采取符合安全排放面积的排气管。 阀瓣频跳或振动:主要是由于弹簧刚度太大。应改用刚度适当的弹簧;调节圈调整不当,使回座压力过高。应重新调整调节圈位置;排放管道阻力过大,造成过大的排放背压。应减小排放管道阻力。
不到规定压力开启:主要是定压不准;弹簧老化弹力下降。应适当旋紧调整螺杆或更换弹簧。
船用外螺纹空气信号安全阀CB/3022-94实物图

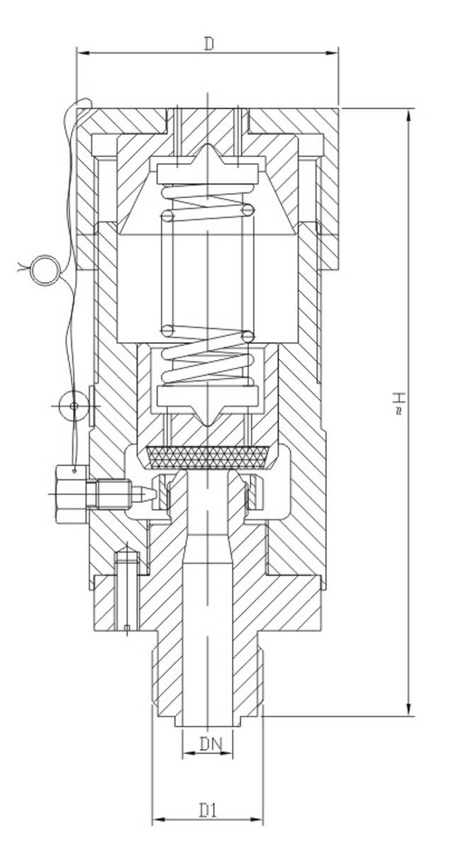
船用外螺纹空气信号安全阀CB/3022-94结构图与尺寸表



声明:
本文中所有文字、数据、图片均只适用于参考。需要查看更多的船用外螺纹空气信号安全阀CB/3022-94 性能参数、结构尺寸参数、价格等详情,或要求高质量印刷样本,请联系我们。
· 电话:18717746989
· 邮箱:sales@m.denvermsbl.com
承质订货须知:
一、A:产品名称、型号、公称通径B:介质及温度、压力范围C:是否有附件、交货期、特殊要求等以便我们的为您正确选型。
二、若已经由设计单位选定我公司的阀门型号,请您根据阀门参数直接与我们销售中心订购。
三、当您使用的场合非常重要或环境比较复杂时,请您提供设计图纸和详细参数,我们的工程师专家会为您审核与分析。我们可以为您提供解决方案,包括设计、定做、成套、运行、服务。我们一直致力于阀门行业领域,为您提供船用阀门知识、服务、技术顾问。
感谢您访问我们的网站【www.m.denvermsbl.com】,如有任何疑问,您可以致电给我们,我们一定会尽心尽力为您提供服务。本厂提供船用蝶阀、船用闸阀、船用止回阀、船用调节阀、船用减压阀、船用呼吸阀、高速透气阀、船用快关阀、船用自闭阀、船用旋塞阀、船用消防阀、船用通海阀、船用防浪阀、船用滤器、船用空气帽、船用球阀、船用截止阀、船用截止止回阀、船用阀组、船用截止阀箱、船用针型阀、船用电磁阀、船用隔膜阀、船用压力表阀等各类船用阀门,不锈钢阀门。